Villa E 1027 Elevation

The sordid saga of eileen gray s iconic e 1027 house designed by the irish architect and designer the 1929 french riviera villa was an obsession of le corbusier.
Villa e 1027 elevation. Analysis of reinforced concrete and structural degradation due to the mediterranean seaside atmospheric conditions research into proper site drainage. All posts edited by all members. E for eileen 10 for the j of jean as the 10th letter of the alphabet 2 for the b of badovici and 7 for the g of gray. But gray s innovative design was gentler playful and more sensual in nature than most modernist functionalism of that era.
Introduction in late 1920 the architect and designer eileen gray designed and built by the sea e 1027 house which would become a landmark of modern architecture. Mark c claire l emmeily z. Completed in 1929 e 1027 was the first major architecture project by gray an irish architect who was one of the pioneers of the modernist movement. Previously a ruin a new crowdfunding campaign aims to continue its restoration.
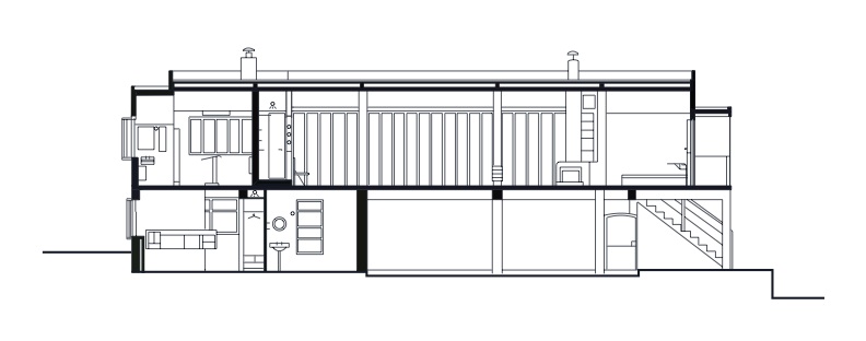
The villa e 1027 was not only eileen grays s first building to be erected but also her masterpiece. The following drawings depict the basement and first floor plan five sections and four elevations of e 1027. The name of the house e 1027 sounds impersonal there is a resulting numerical code. When seen from the water one can easily link it with the marine landscape due to its shape and colour and even imagine it as a stranded ship.
It was built as a summer residence to share with your lover critic jean badovici. A long term restoration program was planned with five topics. E 1027 like contemporary houses by le corbusier walter gropius and other modernist pioneers had white walls large windows a flat roof and incorporated industrial materials in its construction. E 1027 case study of e 1027 by eileen gray for don mckay s arch100 course in uwsa by mark cooper claire ludewigs maddi slaney and emmeily zhang.
The villa is called e 1027. E 1027 is a modernist villa in roquebrune cap martin in the alpes maritimes department of france it was designed and built from 1926 29 by the irish architect and furniture designer eileen gray l shaped and flat roofed with floor to ceiling windows and a spiral stairway to the guest room e 1027 was both open and compact. E 1027 gets top billing in the very first issue of l architecture d aujourd hui. A modernist villa on the south coast of france which was designed by eileen gray and lived in by le corbusier is captured in these photos by manuel bougot.